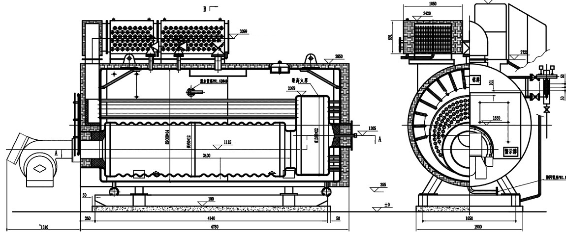
扫一扫添加微信燃气蒸汽锅炉,采用卧式内燃两回程湿背式结构,波形组合炉胆为回程,*二回程由螺纹烟管构成,锅炉的后管板不受高温烟气的直接冲刷,工作条件改善。同时,该结构使得锅炉后部散热损失大为减少。为提高热效率,该型锅炉前烟箱出口处依次布置有节能器、冷凝器,其节能效果良好。
本锅炉具有高、低水位报警功能,低水位联锁保护功能和过压联锁保护功能。为了有效地监视和控制水位及压力,本锅炉配备有水位计、电极式水位控制报警器,还配备有压力表及压力控制器,使锅炉具有高、低水位报警/低水位联锁保护和蒸汽压力过压联锁保护,锅炉自动点火、燃烧器火力自动调节和熄火保护,锅炉的安*运行。
该产品的燃料从燃烧器喷出,被高压电子点火点燃,在炉胆内微正压燃烧,燃烬后的高温烟气由后部烟室转弯180°进入*二回程,由前烟箱处转弯180°进入节能器和冷凝器由烟囱排入大气。
前烟箱采用整体式双开门设置,烟箱门双层密封,该形式整体性好,美观、大方,检修时开启也很轻便。
烟囱高度按8米配置出厂,用户应按所在地环保部门批准的环境影响报告书的要求确定实际高度,但不得低于8米。
适用行业:
医药、化工、轻工、纺织、建材、养殖、食品饮料、塑料泡沫、印染洗涤、橡胶加工、造纸纸品、木材加工、宾馆酒店、制衣制革等行业领域.

性能特点:
1. 金泰锅炉技术技术
全湿背回燃室,回燃室与后管板扳边对接,锅炉100%全对接焊,应力最低,质量更可靠。
2. 大直径波纹炉胆
锅炉燃烧室由大直径全波纹炉胆组成,燃烧空间大,燃料燃烧完全,有效吸收热膨胀,辐射受热面大,有效降低氮氧化物排放量,可以有效达到规定排放范围值之内。
3. 热力充足
锅炉受热面积按≥25㎡/蒸吨设计配置,充分吸收有效热量,排烟温度低,热损失小,保证出力足,效率高。
4. 蒸汽品质高
锅壳直径大,水容量大,对负荷变化适应能力强,出力稳定;蒸汽空间容积大,汽水界面与蒸汽出口净距离足够高,蒸汽湿度小。
5. 安全降水时间足
锅炉的燃烧室低位布置,水位确定符合国家规程,同时严格按国际通用规范标准的水位波动时间要求,具有充足的安全降水空间,保证锅炉的运行安全。
6. 多功能安全防爆装置
锅炉后面板上设有与炉膛连通的防爆装置,防止燃料在炉膛中发生剧烈爆燃时,泄放瞬间产生的高能量,能自动复位,同时具有观火视镜和检修通道的功能作用,利用运行中燃烧火焰的调整,炉膛检查、维护方便。
7. 锅内检修方便
锅炉顶部设有人孔,锅炉前后端中下部分别设有独特的手孔装置,便于锅内装置及锅炉底部的检查、清理。
8. 前后烟箱密封独特
烟箱采用双开式烟箱门,开启方便,多级迷宫式密封,密封材料特制,压缩性好,完全隔阻烟气的泄漏,可重复使用。
9. 压力、水位保护可靠
锅炉压力、水位设置多重控制保护,以及超烟温保护,确保锅炉运行的安全。
10. 自动控制水平领先
锅炉控制器采用西门子/德力西电气元件,性能可靠。控制器有三种形式:普通型、具有液晶显示的中英文菜单型、人机对话远程控制的触摸屏型

1、 燃烧器 2、 前烟箱门 3、压力控制器 4、 压力表 5、 保温层 6、 传感器 7、 水位计 | 8、 水位控制器 9、 极低水位保护电极 10、 副汽阀 11、 主汽阀 12、 安全阀 13、 平台扶梯 14、 人孔装置 | 15、 长螺纹烟管 16、 短螺纹烟管 17、 吊耳 18、 湿背回燃室 19、 防爆观火孔 20、 外包 21、 后烟箱门 | 22、 手孔装置 23、 给水装置 24、 水泵 25、 底座 26、 炉胆 27、 管板 28、 耐火混凝土 |
| 型号 | WNS1-1.25-Q | WNS2-1.25-Q | WNS4-1.25-Q | WNS6-1.25-Q | |
| 额定蒸发量 | 1t/h | 2t/h | 4t/h | 6t/h | |
| 额定蒸汽压力 | 1.25MPa | 1.25MPa | 1.25MPa | 1.25MPa | |
| 额定蒸汽温度 | 194℃ | 194℃ | 194℃ | 194℃ | |
| 给水温度 | 20℃ | 20℃ | 20℃ | 20℃ | |
| 节能器进/出水温度 | 40℃/90℃ | 42℃/78℃ | 40℃/90℃ | 40℃/76℃ | |
| 冷凝器进/出水温度 | 20℃/40℃ | 20℃/42℃ | 20℃/40℃ | 20℃/40℃ | |
| 排污率 | 3% | 3% | 3% | 3% | |
| 冷空气温度 | 20℃ | 20℃ | 20℃ | 20℃ | |
| 设计排烟温度 | 55.16℃ | 55.56℃ | 55.16℃ | 52.1℃ | |
| 天然气低位发热值 | 35590KJ/Nm³ | 35590KJ/Nm³ | 35590KJ/Nm³ | 35590KJ/Nm³ | |
| 受热面积 | 辐射 | 6.93㎡ | 9.73㎡ | 14.67㎡ | 19.41㎡ |
| 对流 | 13.55㎡ | 28.89㎡ | 52㎡ | 91.13㎡ | |
| 节能器 | 11.84㎡ | 22.56㎡ | 32.16㎡ | 56.16㎡ | |
| 冷凝器 | 14.8㎡ | 28.2㎡ | 48.24㎡ | 74.88㎡ | |
| 设计燃料消耗量 | 79Nm³/h | 158Nm³/h | 314.43Nm³/h | 470.91Nm³/h | |
| 设计热效率 | 97.45% | 97.43% | 97.45% | 97.58% | |
| 冷凝折算热效率 | 100.6% | 100.58% | 100.6% | 100.73% | |
| RIELLO低氮燃气燃烧器 | 燃烧器背压 | 1050Pa | 900Pa | 1300Pa | 1600Pa |
| 输出功率 | 300/600~1300KW | 300/930~1860KW | 500/1500~4450KW | 1000/2200~6250KW | |
| 流量 | 30/60~130Nm³/h | 30/93~186Nm³/h | 50/150~440Nm³/h | 100/220~620Nm³/h | |
| 电机功率 | 2.2KW | 4.5KW | 9.2KW | 15KW | |
| 比调方式 | 机械比调 | 电子比调 | 电子比调 | 机械比调 | |
| NOx排放浓度 | <80mg/Nm³ | <80mg/Nm³ | <80mg/Nm³ | <80mg/Nm³ | |
| 给水泵 | 电功率 | 2.2KW | 3KW | 4KW | 5.5KW |
| 流量 | 1.6m³/h | 2.8m³/h | 4m³/h | 7m³/h | |
| 扬程 | 148m | 153m | 158m | 156m | |
| 出口处过量空气系数 | 1.075 | 1.075 | 1.075 | 1.075 | |
| 锅炉本体重量 | 3260Kg | 5450Kg/td> | 8766Kg | 10220Kg | |
| 节能器本体重量 | 216Kg | 816Kg | |||
| 冷凝器本体重量 | 290Kg | 1108Kg | |||
| 锅炉运输重量 | 6300Kg | 8220Kg | 11830Kg | 15300Kg | |
| 锅炉运输外形尺寸(长、宽、高) | 3750*2020*2870mm | 4286*2181*3135mm | 5186*2470*3590mm | 5830*2520*3050mm | |
| 锅炉安装外形尺寸(长、宽、高) | 4250*3215*3165mm | 4855*3425*3400mm | 6105*3655*3700mm | 6750*4010*3980mm | |
| 总耗电量 | 4.4KW | 8.5KW | 13.2KW | 20.5KW | |
您在购买金豫泰锅炉时,就可享受到我公司对产品的优质服务,为了使金豫泰锅炉能够合理、正确、规范的使用和避免非专业人员对该产品锅炉进行维修造成损坏或减短使用寿命,我公司对产品的服务工作做出如下承诺:
1、我公司可根据贵单位的要求承担锅炉设计、安装等与锅炉有关的各项事宜,采取交钥匙工程,我们可提供完善的售后服务,指导如何使用和维护锅炉及配件,提高锅炉运行效率,最大限度的延长设备使用寿命。
2、我公司售后服务中心配备有售后服务软件,对每台锅炉建立相应的管理档案,对每台出厂的锅炉进行售后服务跟踪管理,售后人员对锅炉进行定期的回访,并将每台锅炉的情况反馈到售后服务中心, 由中心进行汇总分析,并做出相应的指导,根据我公司为客户设立的设备档案,定期向客户提示应当进行检修的部位,并且将根据客户的要求定期为客户提供检修人员。
3、遇有紧急情况,我公司可提供24小时服务,迅速解决。根据区域的不同,1—12小时内到达现场,省内12小时内解决问题,省外24小时解决问题,专业售后团队,为您服务。
4、我公司产品由中国人民保险公司承担质量保险。
5、除报价以外,提供免费设备锅炉房的有关各项事宜,办理各种锅炉运行手续。
6、公司免费培训锅炉操作人员及技术服务,并可提供锅炉房内安装工艺设计图。
7、保修期内因质量有问题的配件免费更换,本公司负责免费保修,更换损坏的零部件,超过保修期或人为损坏,仍负责设备的维修与指导,对修理、更换的零部件只收取成本费,保修期满后负责终身维修。
8、根据锅炉服务管理档案,定期电话回访指导锅炉日常保养,令锅炉能正常运转,使锅炉保持良好运行状态。
9、工程安装过程,双方配合,严格管理,确保优质样板工程。真正实现“买名牌,买满意,买放心”,给贵单位增添光彩。设计、制造、安装、验收、施工、培训、全部采取一条龙服务,确保锅炉正常运行。
欢迎填写以下表格,留下您的联系电话、常用邮箱、设备使用地等信息,并尽可能详细描述产品需求,我们将快速处理您提交的信息,确保您的购买咨询得到及时、准确的回复。