全国咨询服务电话:
18738858880

河南豫金泰锅炉有限公司

当前位置:首页 > 产品展示 > 生物质锅炉
<
>

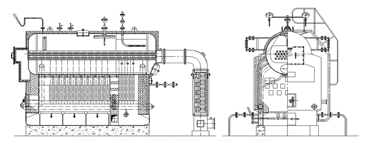
DZH快装活动炉排生物质锅炉

所属分类:
生物质锅炉
应用范围:
供应工艺热水蒸汽、大众采暖、集中供热
简介:DZH快装活动炉排生物质锅炉是一种卧式三回程水火管式锅炉。锅炉的燃料是农林废物作为原材料,经过粉碎、混合、挤压、烘干等工艺,制成各种成型(如块状、颗粒状等)的,可直接燃烧的一种新型清洁燃料生物质燃料。燃料...
点击询价 18738858880
河南豫金泰锅炉有限公司 扫一扫添加微信

产品介绍

DZH快装活动炉排生物质锅炉是一种卧式三回程水火管式锅炉。锅炉的燃料是农林废物作为原材料,经过粉碎、混合、挤压、烘干等工艺,制成各种成型(如块状、颗粒状等)的,可直接燃烧的一种新型清洁燃料生物质燃料。燃料由输料机送入炉顶料仓,然后由螺旋给料机送入炉膛,均匀散落在炉排上,在此处由于高温烟气和一次风的作用逐步预热,干燥、着火、燃烧,此过程中析出大量挥发分,燃烧剧烈。

燃料经过燃烧后产生的高温烟气冲刷锅炉的主要受热面后,进入锅炉尾部受热面省煤器和空气预热器,再进除尘器,后经烟囱排入大气。未气化的燃料边向炉排后部运动,直至燃尽,后剩下的少量灰渣落入炉排后面的除渣口,为方便排灰,锅炉的后部布置有螺旋出渣机,实现连续清灰。锅炉尾部烟道布置有除尘器,烟尘排放符合环保要求。

生物质锅炉燃料来源广泛,是可再生的绿色能源,它几乎不含硫份、灰分少,其生长过程能吸收燃烧过程产生的**CO2,实现CO2零排放。生物质能源将逐步代替煤炭,成为主要能源之一。生物质燃料包括秸秆、木枝条、竹木加工废料、粮食壳皮、果壳、糖渣、油渣等。按其形状尺寸可划分为屑(≤3mm)、片(≤50mm)、条块(>50mm)状三种。

我公司自2003年开始,与国内知名高等院校联合、吸收*进同行的技术,逐步开发生物质锅炉,并在实践运营中不断加以改进,目前已形成成熟稳定的技术、产品得到广泛应用。根据不同生物质的特性和形状尺寸,我们已经研制开发了固定炉排、活动炉排、链条炉排及室燃四种燃烧方式,横水管、单纵、双纵三种本体结构,四大系列生物质燃料锅炉。与燃*锅炉结构不同,我公司生物质燃料锅炉的主要特点如下:通过在炉膛内设计布置的二次风,扰动烟气动力工况,及时补充氧气燃烬挥发份,提高热效率并减少排放。合理设计对拱和后部炉排的保护,并避免产生炉膛周期性微爆。对于含水分废料,增加预热段长度、提供有效热源加热或直接投入炽热烟气高温段。对于用气量高峰负荷突出,或废料中含胶水等易结焦成份,则在炉膛内布置大量受热面予以解决。对于废料中有块、条、片、屑、粉多种状态,设计多种送料方式和单一送料方式供用户选择。

与燃*锅炉相比,生物质燃料成本低廉,大幅降低运行费用。我公司可以针对用户各种不同生物质燃料的使用要求进行单独设计,为用户提供*优价值的产品


性能优势

 (1)采用拱型管板与螺纹烟管组成锅筒,使锅筒由准钢性体变为准弹性体结构,取消了管板区的拉撑件,减少了应力。管板内烟管由两回程改为单回程,解决了管板裂纹的难题。 

(2)锅筒下部由于布置了上升管排,消除了锅筒底部的死水区,使泥渣不易沉积,锅筒高温区能得到良好的冷却,预防了锅筒下部鼓包。

(3)采用高效传热螺纹烟管,获得了强化传热效果,达到锅炉升温、升压快的特点,提高了锅炉的热效率。

(4)结构紧凑,与同类型锅炉比较,外形尺寸小,节省锅炉房基建投资。

(5)运行稳定、调整方便、出力足。

(6)采用螺纹烟管强化传热,提高了传热系数和热效率,由于烟气在管内有扰动作用。烟管内不易积灰,起到自清扫的作用。

(7)炉膛内的八字墙、出口烟窗部分均有一定降尘作用。使锅炉的原始排尘浓度控制在标准以下,保证了锅炉烟尘排放达到国家环保规定的指标。

(8)独特的双层二次风设计,改善了生物质燃料着火条件,采用了独立风室,达到了合理布风,使炉膛内形成一个有利于燃烧的空气动力场,使得燃烧温度高、燃烧效率高。


工作原理

 233.png

技术参数

型号

 

项目

DZH0.5-0.7-T

DZH1-0.7-T

DZH2-0.7-T

DZH4-1.25-T

DZH0.5-1.0-T

DZH1-1.0-T

DZH2-1.0-T

DZH4-1.6-T


DZH1-1.25-T

DZH2-1.25-T

DZH2-1.6-T

 


额定蒸发量(t/h)

0.5

1

2

4

额定蒸汽压力(MPa)

0.7/1.0

0.7/1.0/1.25

0.7/1.0/1.25

1.25/1.6

额定蒸汽温度(℃)

170/184

170/184/194

170/184/194/204

194/204

额定给水温度(℃)

20

20

20

20

受热面积(㎡)

本体

21.31

32.12/32.12/33.24

50.5/51.8/51.05/59.4

92.82/92.82

省煤器

8.28

10.56/10.56/27.6

27.6

69.76/33.12

炉排有效面积(㎡)

1.28

2.1

3.36

5.2

燃料种类

生物质颗粒/木屑/竹片/碎木块/秸秆

尺寸<3x3x3mm,水分≤30%,灰分≤5%,低位发热量Q>12000KJ/Kg

锅炉燃料消耗量(kg/h)

75

150

300

600

排烟温度(℃)

~165

~165

~165

~165

锅炉热效率(%)

78

80

80

80

最大运输件重量(t)

8

12

15

22

最大运输件尺寸

长×宽×高(mm)

3228×2000×2656

4108×2200×2915

4700×2300×3270

5600×2550×3563


售后服务

您在购买金豫泰锅炉时,就可享受到我公司对产品的优质服务,为了使金豫泰锅炉能够合理、正确、规范的使用和避免非专业人员对该产品锅炉进行维修造成损坏或减短使用寿命,我公司对产品的服务工作做出如下承诺:
1、我公司可根据贵单位的要求承担锅炉设计、安装等与锅炉有关的各项事宜,采取交钥匙工程,我们可提供完善的售后服务,指导如何使用和维护锅炉及配件,提高锅炉运行效率,最大限度的延长设备使用寿命。
2、我公司售后服务中心配备有售后服务软件,对每台锅炉建立相应的管理档案,对每台出厂的锅炉进行售后服务跟踪管理,售后人员对锅炉进行定期的回访,并将每台锅炉的情况反馈到售后服务中心, 由中心进行汇总分析,并做出相应的指导,根据我公司为客户设立的设备档案,定期向客户提示应当进行检修的部位,并且将根据客户的要求定期为客户提供检修人员。
3、遇有紧急情况,我公司可提供24小时服务,迅速解决。根据区域的不同,1—12小时内到达现场,省内12小时内解决问题,省外24小时解决问题,专业售后团队,为您服务。
4、我公司产品由中国人民保险公司承担质量保险。
5、除报价以外,提供免费设备锅炉房的有关各项事宜,办理各种锅炉运行手续。
6、公司免费培训锅炉操作人员及技术服务,并可提供锅炉房内安装工艺设计图。
7、保修期内因质量有问题的配件免费更换,本公司负责免费保修,更换损坏的零部件,超过保修期或人为损坏,仍负责设备的维修与指导,对修理、更换的零部件只收取成本费,保修期满后负责终身维修。
8、根据锅炉服务管理档案,定期电话回访指导锅炉日常保养,令锅炉能正常运转,使锅炉保持良好运行状态。
9、工程安装过程,双方配合,严格管理,确保优质样板工程。真正实现“买名牌,买满意,买放心”,给贵单位增添光彩。设计、制造、安装、验收、施工、培训、全部采取一条龙服务,确保锅炉正常运行。

在线订购

欢迎填写以下表格,留下您的联系电话、常用邮箱、设备使用地等信息,并尽可能详细描述产品需求,我们将快速处理您提交的信息,确保您的购买咨询得到及时、准确的回复。

Copyright © 2024 河南豫金泰锅炉有限公司    备案号:
扫码微信咨询
187-3885-8880