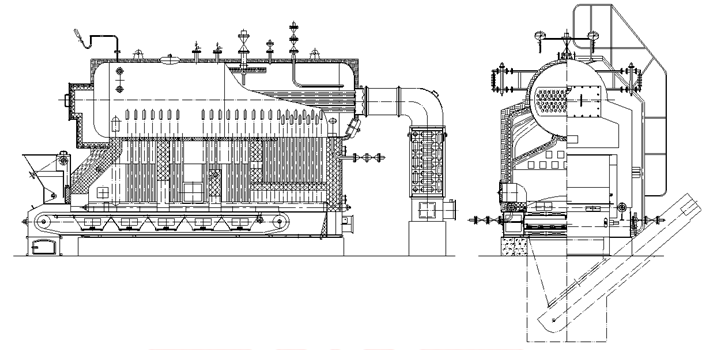
扫一扫添加微信DZL快装链条炉排生物质锅炉是一种卧式三回程水火管锅炉,在锅筒内布置螺纹烟管,炉膛左右两侧有水冷壁管,前后拱采用新型的节能炉拱,采用轻型小鳞片式链条炉排更有利于生物质燃料的燃烧,配有鼓风机、引风机进行机械通风,并装有出渣机实现自动出渣。
燃料自上煤斗落到炉排上,进入炉膛内燃烧,火焰经过后拱折射向上通过本体两侧燃烬室折向转到前烟箱,再由前烟箱折向锅筒内的螺纹烟管中,经过后烟箱进入省煤器,然后再由引风机抽引通过烟道至烟囱排入大气。
(1)采用拱型管板与螺纹烟管组成锅筒,使锅筒由准钢性体变为准弹性体结构,取消了管板区的拉撑件,减少了应力。管板内烟管由两回程改为单回程,解决了管板裂纹的难题。
(2)锅筒下部由于布置了上升管排,消除了锅筒底部的死水区,使泥渣不易沉积,锅筒高温区能得到良好的冷却,预防了锅筒下部鼓包。
(3)采用高效传热螺纹烟管,获得了强化传热效果,达到锅炉升温、升压快的特点,提高了锅炉的热效率。
(4)结构紧凑,与同类型锅炉比较,外形尺寸小,节省锅炉房基建投资。
(5)运行稳定、调整方便、出力足。
(6)采用螺纹烟管强化传热,提高了传热系数和热效率,由于烟气在管内有扰动作用。烟管内不易积灰,起到自清扫的作用。
(7)炉膛内的八字墙、出口烟窗部分均有一定降尘作用。使锅炉的原始排尘浓度控制在标准以下,保证了锅炉烟尘排放达到国家环保规定的指标。
(8)独特的双层二次风设计,改善了生物质燃料着火条件,采用了独立风室,达到了合理布风,使炉膛内形成一个有利于燃烧的空气动力场,使得燃烧温度高、燃烧效率高。

锅炉型号 | DZL1-0.7-T DZL1-1.0-T DZL1-1.25-T | DZL2-0.7-T DZL2-1.0-T DZL2-1.25-T | DZL4-1.25-T DZL4-1.6-T | DZL6-1.25-T DZL6-1.6-T | DZL8-1.25-T DZL8-1.6-T | DZL10-1.25-T DZL10-1.6-T (上下组装) | |
额定蒸发量(t/h) | 1 | 2 | 4 | 6 | 8 | 10 | |
额定蒸汽压力(MPa) | 0.7/1.0/1.25 | 0.7/1.0/1.25 | 1.25/1.6 | 1.25/1.6 | 1.25/1.6 | 1.25/1.6 | |
额定蒸汽温度(℃) | 170/184/194 | 170/184/194 | 194/204 | 194/204 | 194/204 | 194/204 | |
额定给水温度(℃) | 20 | 20 | 20 | 20 | 20 | 20 | |
受热面积(㎡) | 本体 | ~33 | ~50 | ~100 | ~170 | ~200 | ~250 |
省煤器 | 10.56/10.56/20.7 | 27.6 | 52.48/33.12 | 87.2 | 98 | 174 | |
炉排有效面积(㎡) | 2.22 | 4.1 | 5.85 | 7.95 | 9.75 | 10.77 | |
燃料种类 | 生物质颗粒成型燃料 | ||||||
锅炉燃料消耗量(kg/h) | ~200 | ~400 | ~800 | ~1200 | ~1600 | ~2010 | |
排烟温度(℃) | ~150 | ~150 | ~150 | ~150 | ~150 | ~150 | |
锅炉热效率(%) | ~82 | ~82 | ~82 | ~82 | ~82 | ~82 | |
最大运输件重量(t) | 17 | 23 | 25 | 35 | 45 | 33(上部) 28(下部) | |
最大运输件尺寸 长×宽×高(m) | 5.1×2.2×3 | 5.5×2.3×3.3 | 6.6×2.6×3.6 | 8.2×2.9×3.8 | 8.1×3.1×3.8 | 7.7×3.2×3.6 8.6×3.0×2.6 | |
您在购买金豫泰锅炉时,就可享受到我公司对产品的优质服务,为了使金豫泰锅炉能够合理、正确、规范的使用和避免非专业人员对该产品锅炉进行维修造成损坏或减短使用寿命,我公司对产品的服务工作做出如下承诺:
1、我公司可根据贵单位的要求承担锅炉设计、安装等与锅炉有关的各项事宜,采取交钥匙工程,我们可提供完善的售后服务,指导如何使用和维护锅炉及配件,提高锅炉运行效率,最大限度的延长设备使用寿命。
2、我公司售后服务中心配备有售后服务软件,对每台锅炉建立相应的管理档案,对每台出厂的锅炉进行售后服务跟踪管理,售后人员对锅炉进行定期的回访,并将每台锅炉的情况反馈到售后服务中心, 由中心进行汇总分析,并做出相应的指导,根据我公司为客户设立的设备档案,定期向客户提示应当进行检修的部位,并且将根据客户的要求定期为客户提供检修人员。
3、遇有紧急情况,我公司可提供24小时服务,迅速解决。根据区域的不同,1—12小时内到达现场,省内12小时内解决问题,省外24小时解决问题,专业售后团队,为您服务。
4、我公司产品由中国人民保险公司承担质量保险。
5、除报价以外,提供免费设备锅炉房的有关各项事宜,办理各种锅炉运行手续。
6、公司免费培训锅炉操作人员及技术服务,并可提供锅炉房内安装工艺设计图。
7、保修期内因质量有问题的配件免费更换,本公司负责免费保修,更换损坏的零部件,超过保修期或人为损坏,仍负责设备的维修与指导,对修理、更换的零部件只收取成本费,保修期满后负责终身维修。
8、根据锅炉服务管理档案,定期电话回访指导锅炉日常保养,令锅炉能正常运转,使锅炉保持良好运行状态。
9、工程安装过程,双方配合,严格管理,确保优质样板工程。真正实现“买名牌,买满意,买放心”,给贵单位增添光彩。设计、制造、安装、验收、施工、培训、全部采取一条龙服务,确保锅炉正常运行。
欢迎填写以下表格,留下您的联系电话、常用邮箱、设备使用地等信息,并尽可能详细描述产品需求,我们将快速处理您提交的信息,确保您的购买咨询得到及时、准确的回复。